99999/46 Pug Run #4/5
$299,000
Weaverville, NC, 28787
land
0
Lot Size: 3.4 Acres
ABOUT
Property Information
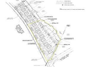
Excellent development opportunity! Property includes 2 lots - both with build-ready homesites in the beautiful Reems Creek Valley. This 3.4 acre parcel offers several level, cleared building sites with an existing road already in place, making it an ideal turnkey opportunity for your future home. A three-bedroom septic permit is on file for each build site, with the option to combine for a 6 bedroom septic if only building one home. City water access is available. The property is quiet and private while still conveniently located near the Reems Creek Golf Course and just a short drive to Weaverville and Asheville. With no HOA, no restrictive covenants, and no minimum square footage requirements, this is a rare chance to build with flexibility in one of the area’s most desirable valleys. This listing includes 2 PIN's, lots 4/5.
SPECIFICS
Property Details
Price:
$299,000
MLS #:
CAR4354317
Status:
Active Under Contract
Beds:
0
Baths:
0
Type:
Land
Subtype:
Lot
Listed Date:
Mar 6, 2026
Lot Size:
148,104 sqft / 3.40 acres (approx)
AMENITIES
Interior
AMENITIES
Exterior
NEIGHBORHOOD
Schools
Elementary School:
Unspecified
Middle School:
Unspecified
High School:
Unspecified
FINANCIAL
Financial
See this Listing
Mortgage Calculator
Similar Listings Nearby
Lorem ipsum dolor sit amet, consectetur adipiscing elit. Aliquam erat urna, scelerisque sed posuere dictum, mattis etarcu.

99999/46 Pug Run #4/5
Weaverville, NC






