2829 Overlook Trail
$537,600
Charlotte, NC, 28212
land
0
Lot Size: 1.57 Acres
ABOUT
Property Information
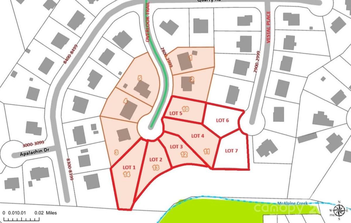
Builders take note. Just recently surveyed and released 7 cul-de-sac lots. This is 7 new lots in the neighborhood of
Stonecrest. 2 Lots on Vestal Place and 5 on Overlook Trail, Located just off of Idlewild Rd. Survey and soil test available. Several of the sites are basement lots. Water and Sewer taps fees will be required. Survey attached.
Address and parcel numbers are below.
2901 Vestal Place 0.226 acres Tax Id- 15620213,
2905 Vestal Place 0.199 acres Tax Id- 16520214,
2908 Overlook Trail 0.166 acres Tax Id- 16520215,
2900 Overlook Trail 0.277 acres Tax Id- 16520216,
2840 Overlook Trail 0.185 acres Tax Id- 16520217,
2834 Overlook Trail 0.206 acres Tax Id- 16520218,
2829 Overlook Trail 0.309 acres Tax Id- 16520219,
Stonecrest. 2 Lots on Vestal Place and 5 on Overlook Trail, Located just off of Idlewild Rd. Survey and soil test available. Several of the sites are basement lots. Water and Sewer taps fees will be required. Survey attached.
Address and parcel numbers are below.
2901 Vestal Place 0.226 acres Tax Id- 15620213,
2905 Vestal Place 0.199 acres Tax Id- 16520214,
2908 Overlook Trail 0.166 acres Tax Id- 16520215,
2900 Overlook Trail 0.277 acres Tax Id- 16520216,
2840 Overlook Trail 0.185 acres Tax Id- 16520217,
2834 Overlook Trail 0.206 acres Tax Id- 16520218,
2829 Overlook Trail 0.309 acres Tax Id- 16520219,
SPECIFICS
Property Details
Price:
$537,600
MLS #:
CAR4308396
Status:
Active
Beds:
0
Baths:
0
Type:
Land
Subtype:
Lot
Subdivision:
Stoneridge
Listed Date:
Oct 1, 2025
Lot Size:
68,302 sqft / 1.57 acres (approx)
AMENITIES
Interior
AMENITIES
Exterior
NEIGHBORHOOD
Schools
Elementary School:
Unspecified
Middle School:
Unspecified
High School:
Unspecified
FINANCIAL
Financial
See this Listing
Mortgage Calculator
Similar Listings Nearby
Lorem ipsum dolor sit amet, consectetur adipiscing elit. Aliquam erat urna, scelerisque sed posuere dictum, mattis etarcu.

2829 Overlook Trail
Charlotte, NC