1001 Fern Avenue
$825,000
Charlotte, NC, 28208
land
0
Lot Size: 0.7 Acres
Listing Provided Courtesy of Tanya Jennings at Keller Williams Connected | 203 313-0390
ABOUT
Property Information
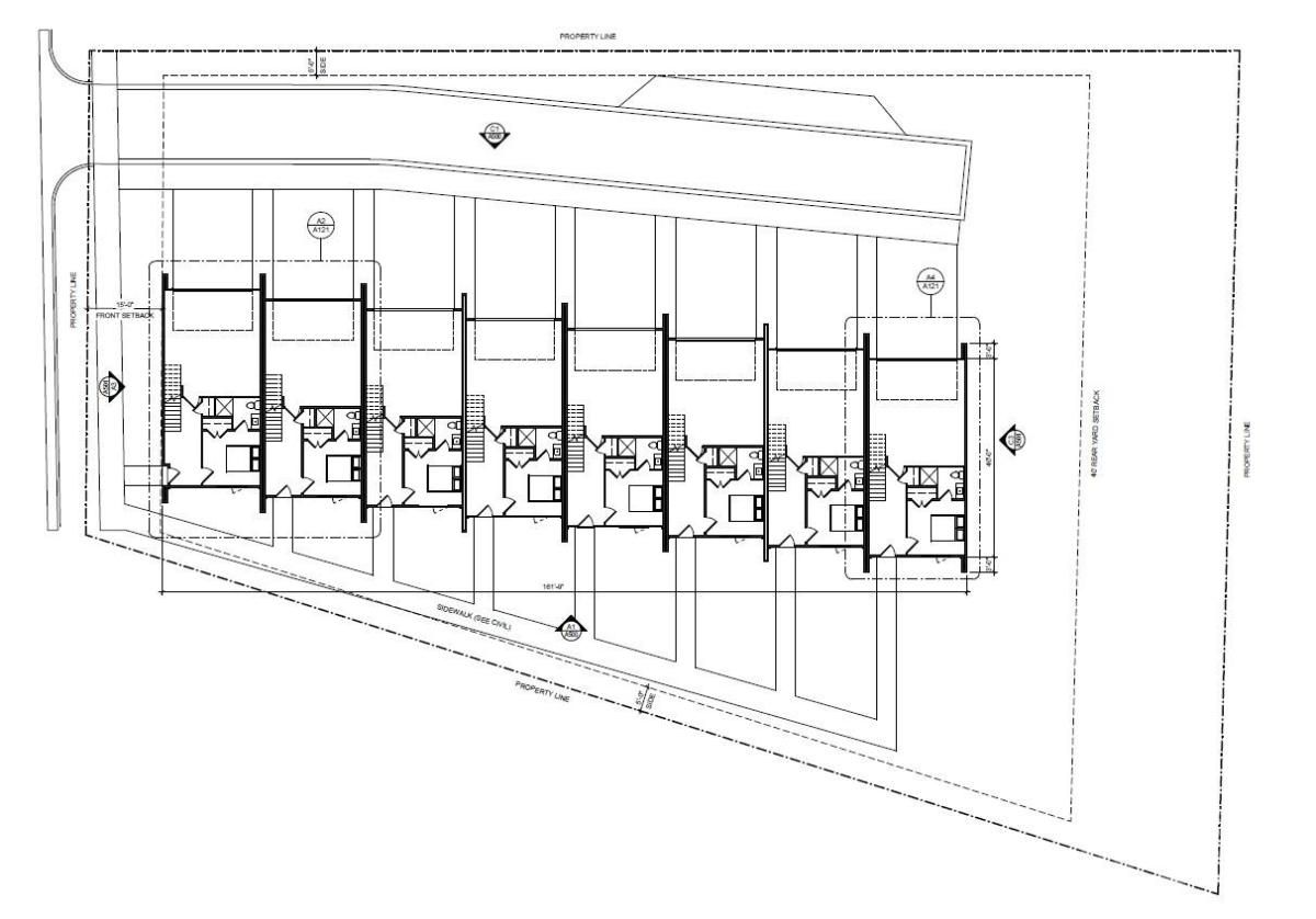
Walking distance from uptown Charlotte, this lot is ready for development in the booming Enderly Park area. Plans have been approved for 8 townhomes. Architectural plans have been created; plans have the units at 2024sqft, 3 bed, 3.5 baths, 737sqft rooftop terrace, private front porch, and backyard facing the woods. Charlotte Engineering, Topographical Surveys, Urban Forestry, Sewer/Water, CDOT and Land Development plans/approvals in place. Subdivision complete. City Storm Water Mitigation Fee already paid.
SPECIFICS
Property Details
Price:
$825,000
MLS #:
CAR4180509
Status:
Active
Beds:
0
Baths:
0
Address:
1001 Fern Avenue
Type:
Land
Subtype:
Lot
Subdivision:
Enderly Park
City:
Charlotte
Listed Date:
Sep 11, 2024
State:
NC
ZIP:
28208
Lot Size:
30,623 sqft / 0.70 acres (approx)
AMENITIES
Interior
AMENITIES
Exterior
NEIGHBORHOOD
Schools
Elementary School:
Unspecified
Middle School:
Unspecified
High School:
Unspecified
FINANCIAL
Financial
See this Listing
Mortgage Calculator
Similar Listings Nearby
Lorem ipsum dolor sit amet, consectetur adipiscing elit. Aliquam erat urna, scelerisque sed posuere dictum, mattis etarcu.
- 6545 Pleasant Grove Road
Charlotte, NC$1,066,000
4.28 miles away
- 1916 Merriman Avenue
Charlotte, NC$1,050,000
2.27 miles away
- 312 & 314 Flint Street
Charlotte, NC$1,050,000
1.59 miles away
- 1301 S Kings Drive
Charlotte, NC$949,900
4.36 miles away
- 1318 Enderly Road
Charlotte, NC$900,000
0.35 miles away
- 00 Kendrick Avenue
Charlotte, NC$900,000
3.99 miles away
- 6109 Paw Creek Road
Charlotte, NC$850,000
3.11 miles away
- 610 Hawthorne Lane
Charlotte, NC$850,000
4.17 miles away
- 525 Toddville Road
Charlotte, NC$800,000
2.61 miles away

1001 Fern Avenue
Charlotte, NC
LIGHTBOX-IMAGES