1945 Hendersonville Road
$3,000,000
Asheville, NC, 28803
land
0
Lot Size: 2.55 Acres
ABOUT
Property Information
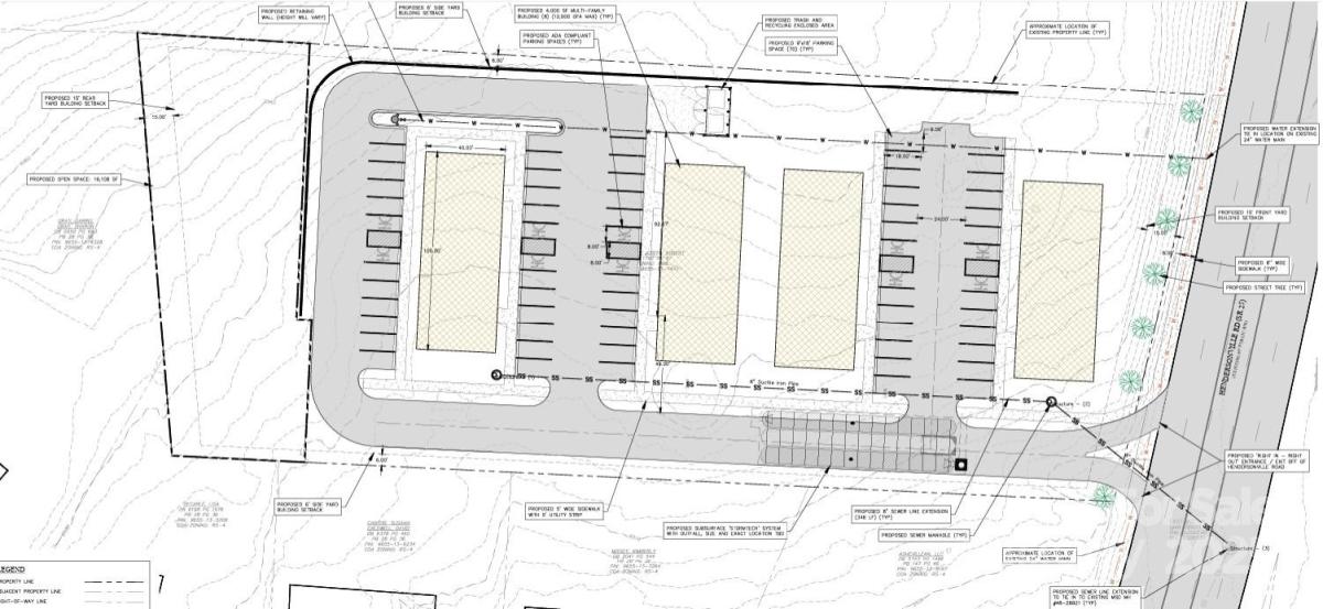
Prime Hendersonville Road development opportunity. 215 feet of frontage just south of Long Shoals Road. Curently zoned RM6 for low density multifamily. Zoning would allow up to 107 units, parking requirements would bring that to 70, see attatched site plan. This property sees an average of 33500 cars pass by daily. Sewer is just across Hendersonville Rd and water, power, and natural gas are readily available. Engineered site plan for a 2 unit medical complex is available, reach out to listing agent for details. Seller is related to listing agent.
SPECIFICS
Property Details
Price:
$3,000,000
MLS #:
CAR4185253
Status:
Active
Beds:
0
Baths:
0
Type:
Land
Subtype:
Acreage
Listed Date:
Sep 19, 2024
Lot Size:
111,078 sqft / 2.55 acres (approx)
AMENITIES
Interior
AMENITIES
Exterior
NEIGHBORHOOD
Schools
Elementary School:
Unspecified
Middle School:
Unspecified
High School:
Unspecified
FINANCIAL
Financial
See this Listing
Mortgage Calculator
Similar Listings Nearby
Lorem ipsum dolor sit amet, consectetur adipiscing elit. Aliquam erat urna, scelerisque sed posuere dictum, mattis etarcu.

1945 Hendersonville Road
Asheville, NC
